Обяви За нас Контакти
Продава 3-СТАЕН
град Бургас, Мадика
150 505 €
294 362.19 лв.

(1 552 €, 3 035.45 лв./m2)
Не се начислява ДДС
История на цената
Коригирана в 15:34 на 13 февруари, 2026 год.
Обявата е посетена 607 пъти.
Площ:
97 m2
Етаж:
8-ми от 8
Строителство:
Тухла, Ще бъде въведен в експлоатация 2026 г.

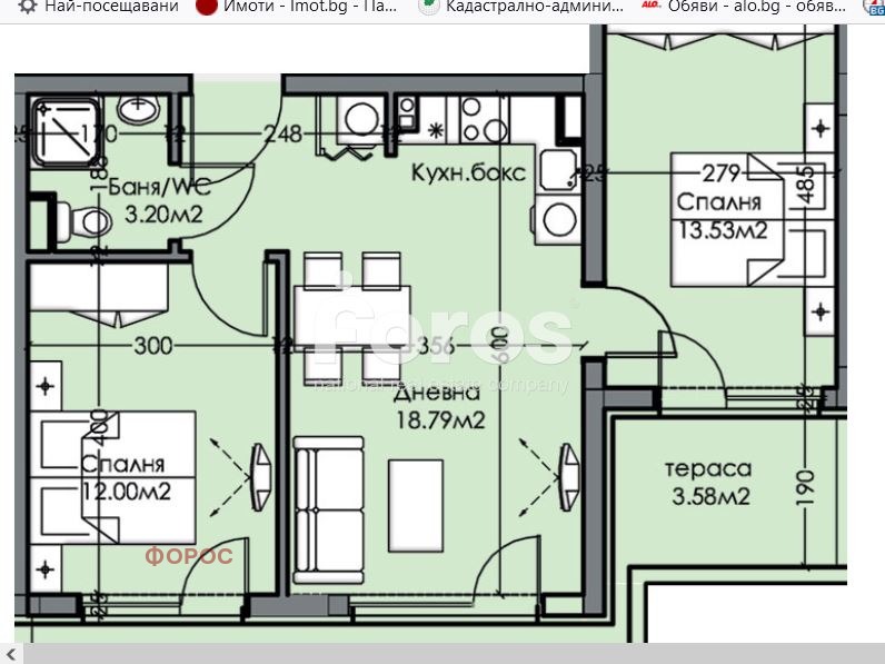
Описание на имота:


Код:2112
БЕЗ КОМИСИОННА ОТ КУПУВАЧА!!!
Тристаен апартамент в напреднал строеж, в к/с Мадика, до Лидъл и ВХТИ.
Жилището е разположено на осми етаж в осеметажен блок, с асансьор.
Състои се от хол с кухня, две спални, санитарен възел и две тераси.
Холът е с площ от 18.79 кв.м., спалните - с площ от 12.00 кв.м. и 13.53 кв.м, баня- 3.20 кв.м, две тераси с площ от 3.58 кв.м и 12.94 кв.м
Степен на завършеност - до тапа.
Сградата ще бъде изпълнена с луксозна външна фасада и висококачествени материали.
Начало на строежа - февруари 2024 год.
Срок на изпълнение - 24-30 месеца от Разрешението за строеж.
Сградата е на етап- Акт 15.
Брокер за контакти: Гери Бакалова
Особености
Тухла
Асансьор
За контакт:
0894610432
Агенция:
ФОРОС
056/818981
Медал за прослужено време
В imot.bg от 2003 г.
foros.imot.bg
Адрес:
област Бургас, гр. Бургас, ул.'Хр.Ботев'-32, ет.4, офис 10
http://www.foros.bg
ИЗПРАТИ ЗАПИТВАНЕ
ИЗПРАТИ ЗАПИТВАНЕТО

Продава 3-СТАЕН
град Бургас, Мадика
Обява: 1c176121635134526

150 505 €
294 362.19 лв.
История на цената
(1 552 €, 3 035.45 лв./m2)

Не се начислява ДДС
ЗАПАЗИ ОБЯВАТА

Местоположение: град Бургас, Мадика

Допълнителни данни за имотите в района и сравнение с други райони

Покажи

Период

и 2 месеца

* Средните цени са определени чрез медианна стойност